Ufficio in vendita

Rovato, Contrada del Barbone
€ 125.000
Prezzo aggiornato
3 locali 3 locali
125 Mq 125 Mq
1 bagno 1 bagno

Ufficio in vendita

Rovato, Contrada del Barbone

Descrizione annuncio

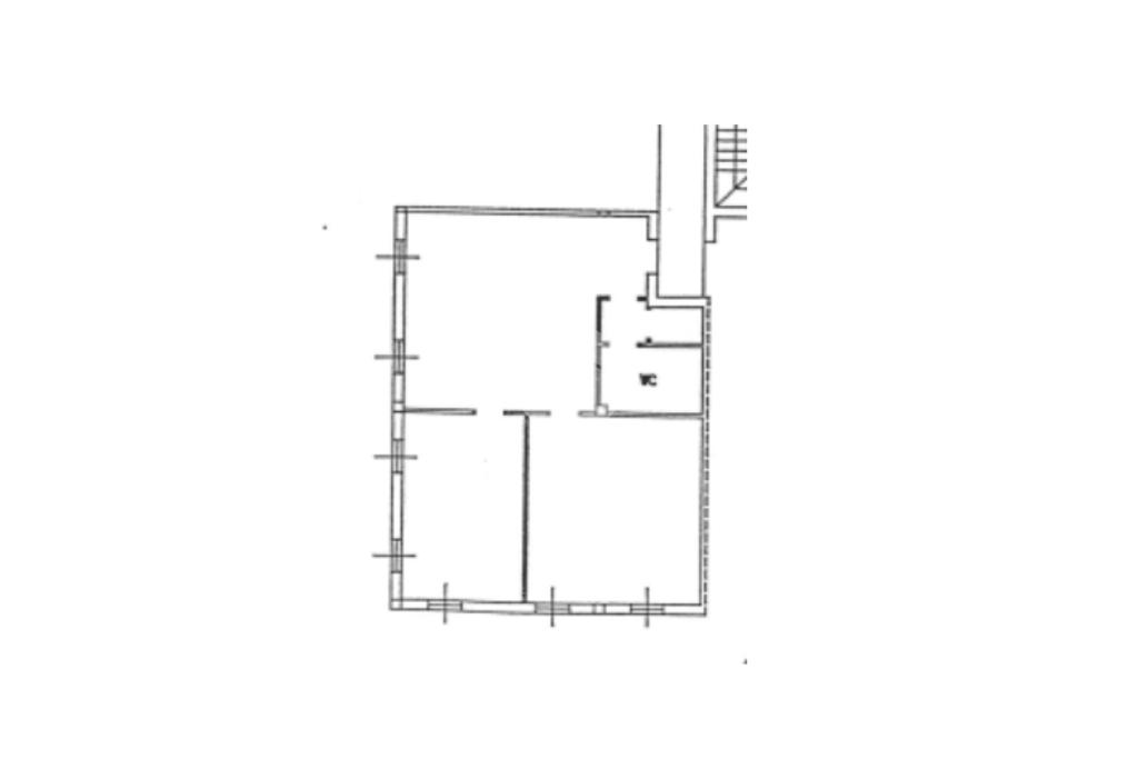
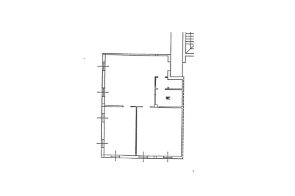
A Rovato, proponiamo in vendita ufficio di circa 100mq, suddiviso in tre locali con servizio igienico.

L'immobile si trova al primo piano di una palazzina mista, accessibile tramite scala interna e/o ascensore condominiale.

E' presente il riscaldamento ed avviene tramite termoconvettori.

Gli impianti elettrico, luci ed idraulico sono funzionanti.

Completa la soluzione un doppio box auto di circa 25 mq, posto al piano seminterrato raggiungibile tramite scala condominiale o rampa esterna, posta sul fronte del complesso.

L'ufficio è ubicato nelle immediate vicinanze della Strada Provinciale 11 ed a poco più di 3 km dal casello autostradale di Rovato dell'A4.

Mostra tutto

Nelle vicinanze

Trasporto pubblico Trasporto pubblico
stazione di Rovato Città
stazione di Rovato Città
1,1 Km
stazione di Rovato Borgo
stazione di Rovato Borgo
1,2 Km
linea ambiente coccaglio
linea ambiente coccaglio
1,6 Km
Trasporto pubblico
1,8 Km
Ricariche auto elettriche Ricariche auto elettriche
A2A Municipio di Rovato
730 m
Lidl Rovato | EnelX
770 m
A2A Rovato Garibaldi
880 m
A2A Casello di Rovato A4
2,2 Km
Scuole Scuole
Scuole
360 m
Scuola primaria
700 m
Farmacia Farmacia
Farmacia
650 m
Farmacia Comunale
850 m
Supermercati Supermercati
Eurospin
1,8 Km
Negozi Negozi
Piazza Italia
2,1 Km
Bar Bar
Antinoo bar gelateria
1,6 Km
Bar Sport
2,5 Km
Ristoranti Ristoranti
Pizzeria Ristorante Il Veliero
270 m
Ristorante Pizzeria Corona
460 m
Ristoranti
810 m
osteria degli undici
870 m
La Loggia
1,2 Km
Mostra tutto

Caratteristiche

Rif.:
61150913
Piano:
1 di 1 (Piano alto)
Box:
1
Condizionamento:
Predisposizione impianto
Ascensore:
No
Riscaldamento:
Autonomo
Mostra tutto
Prezzo Prezzo
€ 125.000
Rata mutuo Rata mutuo
€ 589 / mese
Spese annue Spese annue
€ 2.000
Proponi il tuo prezzoProponi il tuo prezzo

Classe Energetica

G
G
G
G
G
G
G
G
G
EP globale non rinnovabile:
247.69 kW h/m² anno
EP globale rinnovabile:
247.69 kW h/m² anno
EP invernale del fabbricato:
EP estiva del fabbricato:
Anno di costruzione:
1990
Riscaldamento:
Autonomo
Tipo impianto:
Ad aria
Tipo alimentazione:
Aria

Prezzo ridotto di €1 (8%%)

Ti interessa visionare l'immobile?

Fissa un appuntamento  Fissa un appuntamento

Richiedi informazioni

Clicca su Leggi per aprire l'informativa
* Questi campi sono obbligatori

Calcola il tuo mutuo

Semplice e senza impegno
Anticipo

( % )
Mutuo

( % )

pochi semplici passi

inserisci i tuoi dati
Questionario completato
Grazie per aver richiesto un appuntamento senza impegno con un nostro Consulente del Credito e Assicurativo.

Hai inserito correttamente tutti i dati necessari e a breve riceverai una e-mail con un link da convalidare per inviare i tuoi dati.
Affiliato
Industriale Bs Ovest Srl
Largo Romagnoli, 13 25045 Castegnato (BS)

Il nostro staff


  • Simona Forti
    Affiliata

  • Alessio Bertoglio
    Affiliato

  • Niccolò Olivetti
    Affiliato
Largo Romagnoli, 13 25045 Castegnato (BS)
Zona: Brescia Hinterland-Sud Ovest-Franciacorta
Mostra su mappa
Orari: Dal LUNEDI' al VENERDI' dalle ore 8.30 alle ore 12.30 e dalle 14.30 alle 19.00. SABATO dalle ore 8.30 alle ore 12.30
Affiliato
Industriale Bs Ovest Srl
Largo Romagnoli, 13 25045 Castegnato (BS)

2026 Tecnocasa Franchising S.p.A. - P. IVA 08365160152 - Via Monte Bianco 60/A 20089 Rozzano (MI). Ogni agenzia ha un proprio titolare ed è autonoma. Privacy policy | Policy utilizzo | Cookie policy