Capannone in vendita

Gussago, Via Galileo Ferraris - Mandolossa
€ 480.000
10 locali 10 locali
700 Mq 700 Mq
3 bagni 3 bagni

Capannone in vendita

Gussago, Via Galileo Ferraris - Mandolossa

Descrizione annuncio

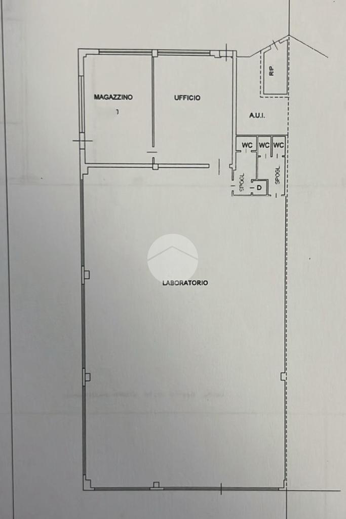
A Gussago proponiamo in vendita capannone, costruito nel 1992, di circa 700mq così composto:

420 mq di zona laboratorio, con altezza interna di 6,80m al tetto, precedentemente riscaldata grazie alla presenza di robour;

ulteriori 140 mq di zona capannone suddiviso in due locali più bassi, adibiti magazzino ed uffici, con altezza interna di 3,50m;

infine 140 mq di abitazione, posta al primo piano suvviviso in 5 locali: sala e cucina, 2 camere da letto, lavanderia e servizio igienico.

All'interno del capannone sono presenti due blocchi servizi, ognuno dei quali dotato di spogliatorio, uno di essi dispone anche di doccia.

Si accede all'immobile tramite un ingresso carraio, posto sul retro dell'immobile e dell'accesso dalla strada, con altezza di 4,16 m e larghezza di 8 m, oltre a due ingressi pedonali posti sul fronte che conducono ai due locali più bassi.

Gli impianti elettrico, luci ed idraulico sono funzionanti e sono presenti calate 220/380v e impianto di aria compressa.

Completa la soluzione un piazzale privato di 450 m che circonda il capannone sui tre lati liberi, comodo per la manovra dei mezzi di medie dimensioni in quanto vi è una distanza di 12 m dall'ingresso carraio al muro di cinta.

Ubicato nella zona industriale della Mandolossa, facilmente raggiungibile dalla città, in quanto si trova a 500 m da Via Valcamonica e dalle Tangenziali e A35 .

Mostra tutto

Nelle vicinanze

Trasporto pubblico Trasporto pubblico
stazione di Castegnato
stazione di Castegnato
3,0 Km
vill.Badia via 1^ n 40
vill.Badia via 1^ n 40
500 m
vill.Badia trav.Ottava fronte n 48
vill.Badia trav.Ottava fronte n 48
500 m
Mandolossa
Mandolossa
660 m
Ricariche auto elettriche Ricariche auto elettriche
A2A Villaggio Badia
900 m
A2A Villaggio La Famiglia
1,9 Km
Centro Commerciale Rondinelle Ingresso Ovest
1,9 Km
Centro Commerciale Rondinelle Ingresso Est
2,1 Km
IKEA Brescia
2,3 Km
Scuole Scuole
Scuola Primaria Don Milani
850 m
Scuola Secondaria di Primo Grado Kennedy
1,3 Km
Scuola elementare Eugenio Montale
1,9 Km
Scuola Primaria Gianni Rodari
2,1 Km
Istituto Marco Polo
2,7 Km
Farmacia Farmacia
Farmacia Comunale 06 Badia
820 m
Farmacia Comunale 05 Violino
1,6 Km
Parafarmacia Conad
2,1 Km
Farmacia Carpi
3,0 Km
Farmacia comunale
3,0 Km
Ospedali Ospedali
Istituto Clinico Sant'Anna
2,2 Km
Supermercati Supermercati
IperSimply
1,6 Km
Spazio Conad
2,1 Km
Italmark
2,2 Km
Coop
2,7 Km
Negozi Negozi
Upim
1,9 Km
Wheelup
2,0 Km
Franklin & Marshall Store
2,3 Km
Privativa
2,6 Km
Divi Domani
2,9 Km
Bar Bar
LAS Vegas Games & Foods
2,0 Km
Bar Viandante
2,4 Km
Bar
2,7 Km
Caffè Marconi
2,7 Km
Bolle di Sapore
2,8 Km
Ristoranti Ristoranti
Trattoria La Campagnola
650 m
Wok Sushi
1,1 Km
Villa Badia Piccola
1,7 Km
Pizzeria Trattoria da Cinana
2,0 Km
Ristorante Convento Sant'Anna
2,1 Km
Mostra tutto

Caratteristiche

Rif.:
61139407
Piano:
1 di 1 (Piano terra)
Condizionamento:
Autonomo
Ascensore:
No
Riscaldamento:
Autonomo
Giardino:
Privato
Mostra tutto
Prezzo Prezzo
€ 480.000
Rata mutuo Rata mutuo
€ 2.263 / mese
Spese annue Spese annue
€ 0
Proponi il tuo prezzoProponi il tuo prezzo

Classe Energetica

G
G
G
G
G
G
G
G
G
EP globale non rinnovabile:
278.00 kW h/m² anno
EP globale rinnovabile:
278.00 kW h/m² anno
EP invernale del fabbricato:
EP estiva del fabbricato:
Anno di costruzione:
1990
Riscaldamento:
Autonomo
Tipo impianto:
Ad aria
Tipo alimentazione:
Aria

Ti interessa visionare l'immobile?

Fissa un appuntamento  Fissa un appuntamento

Richiedi informazioni

Clicca su Leggi per aprire l'informativa
* Questi campi sono obbligatori

Calcola il tuo mutuo

Semplice e senza impegno
Anticipo

( % )
Mutuo

( % )

pochi semplici passi

inserisci i tuoi dati
Questionario completato
Grazie per aver richiesto un appuntamento senza impegno con un nostro Consulente del Credito e Assicurativo.

Hai inserito correttamente tutti i dati necessari e a breve riceverai una e-mail con un link da convalidare per inviare i tuoi dati.
Affiliato
Industriale Bs Ovest Srl
Largo Romagnoli, 13 25045 Castegnato (BS)

Il nostro staff


  • Simona Forti
    Affiliata

  • Alessio Bertoglio
    Affiliato

  • Rebecca Leoni
    Coordinatrice

  • Niccolò Olivetti
    Affiliato
Largo Romagnoli, 13 25045 Castegnato (BS)
Zona: Brescia Hinterland-Sud Ovest-Franciacorta
Mostra su mappa
Orari: Dal LUNEDI' al VENERDI' dalle ore 8.30 alle ore 12.30 e dalle 14.30 alle 19.00. SABATO dalle ore 8.30 alle ore 12.30
Affiliato
Industriale Bs Ovest Srl
Largo Romagnoli, 13 25045 Castegnato (BS)

2025 Tecnocasa Franchising S.p.A. - P. IVA 08365160152 - Via Monte Bianco 60/A 20089 Rozzano (MI). Ogni agenzia ha un proprio titolare ed è autonoma. Privacy policy | Policy utilizzo | Cookie policy