Capannone in vendita

Corte Franca, Via Cavour - Borgonato
€ 660.000
5 locali 5 locali
1390 Mq 1390 Mq
10 bagni 10 bagni

Capannone in vendita

Corte Franca, Via Cavour - Borgonato

Questo immobile appartiene ad un'unità principale con metratura più ampia

Descrizione annuncio

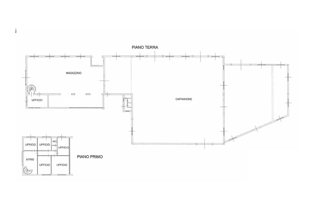
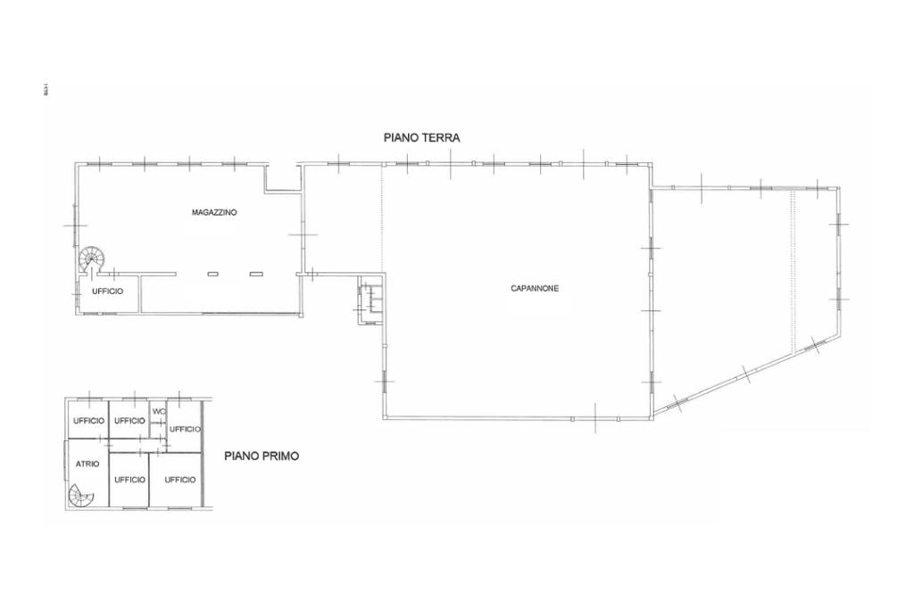
A Corte Franca, nella frazione di Borgonato, proponiamo in vendita capannone di circa 960 mq, libero su 4 lati (di cui 2 sfruttabili) sviluppato su due campate, con un'altezza di 5,85 mt, metratura comprensiva di sala mensa, 2 servizi igienici con antibagno, spogliatoio e doccia.

Si accede alla soluzione tramite 4 portoni carrai con altezza di 4 mt.

Il lotto ha una superficie di circa 4.300 mq ed il piazzale esterno è totalmente cementato, accessibile anche da mezzi quali bilici.

Il capannone dispone di due carriponte, uno con portata di 10 ton e uno con portata di 6,30 ton.

Completano la soluzione ulteriori 200 mq di capannone sul fronte del complesso, con un'altezza di 3 mt;

sono presenti 170 mq di uffici suddivisi su 2 livelli, collegati internamente tramite scala, dotati di servizio igienico ed antibagno e doccia.

La zona uffici è riscaldata e raffrescata grazie alla presenza di termoconvettori e split ed è altresì dotata di cablaggio.

Al primo piano troviamo un trilocale con una metratura pari ad 60 mq, accessibile esternamente con scala indipendente, dotato di servizio igienico con doccia.

Nel complesso è presente una cabina elettrica che può supportare oltre 100 kw, attualmente già utilizzati dalla proprietà.

L'unità proposta è completa di tutta l'impiantistica, calata, blindo sbarre, prese 220/380 ed impianto di aria compressa.

La costruzione sorge nel Comune di Corte Franca, nella frazione di Borgonato, in una zona mista residenziale ed industriale, facilmente raggiungibile grazie alla vicinanza della Strada Provinciale XI.

Mostra tutto

Nelle vicinanze

Trasporto pubblico Trasporto pubblico
Borgonato-Adro
Borgonato-Adro
260 m
Provaglio-Timoline
Provaglio-Timoline
2,1 Km
Provaglio-Timoline
Provaglio-Timoline
2,1 Km
Ricariche auto elettriche Ricariche auto elettriche
Franciacorta Golf Club
1,3 Km
Gardauno Provaglio
2,5 Km
Ronco Calino
2,6 Km
Scuole Scuole
Scuola primaria "Don Igino Delaidelli"
2,2 Km
Scuole
2,8 Km
Farmacia Farmacia
Farmacia
2,6 Km
Supermercati Supermercati
Esselunga
2,7 Km
Negozi Negozi
coop
2,8 Km
Negozi
2,9 Km
Bar Bar
Bar
1,1 Km
Number one
1,2 Km
Dispensa Pani e Vini Franciacorta
1,9 Km
Bar Dama Verde
2,8 Km
Ristoranti Ristoranti
Due Colombe Ristorante Al Borgo Antico
260 m
PaneEvino
820 m
Ristoranti
1,4 Km
Ristorante Al Dossello in Franciacorta
1,8 Km
Dispensa Pani e Vini Franciacorta
1,9 Km
Mostra tutto

Caratteristiche

Rif.:
61122489
Piano:
1 di 1 (Piano su più livelli)
Condizionamento:
Autonomo
Ascensore:
No
Riscaldamento:
Autonomo
Giardino:
Privato
Mostra tutto
Prezzo Prezzo
€ 660.000
Rata mutuo Rata mutuo
€ 3.112 / mese
Spese annue Spese annue
€ 0
Proponi il tuo prezzoProponi il tuo prezzo

Classe Energetica

F
F
F
F
F
F
F
F
F
EP globale non rinnovabile:
266.56 kW h/m² anno
EP globale rinnovabile:
266.56 kW h/m² anno
EP invernale del fabbricato:
EP estiva del fabbricato:
Anno di costruzione:
1990
Riscaldamento:
Autonomo
Tipo impianto:
Ad aria
Tipo alimentazione:
Aria

Ti interessa visionare l'immobile?

Fissa un appuntamento  Fissa un appuntamento

Richiedi informazioni

Clicca su Leggi per aprire l'informativa
* Questi campi sono obbligatori

Calcola il tuo mutuo

Semplice e senza impegno
Anticipo

( % )
Mutuo

( % )

pochi semplici passi

inserisci i tuoi dati
Questionario completato
Grazie per aver richiesto un appuntamento senza impegno con un nostro Consulente del Credito e Assicurativo.

Hai inserito correttamente tutti i dati necessari e a breve riceverai una e-mail con un link da convalidare per inviare i tuoi dati.
Affiliato
Industriale Bs Ovest Srl
Largo Romagnoli, 13 25045 Castegnato (BS)

Il nostro staff


  • Simona Forti
    Affiliata

  • Alessio Bertoglio
    Affiliato

  • Rebecca Leoni
    Coordinatrice

  • Niccolò Olivetti
    Affiliato
Largo Romagnoli, 13 25045 Castegnato (BS)
Zona: Brescia Hinterland-Sud Ovest-Franciacorta
Mostra su mappa
Orari: Dal LUNEDI' al VENERDI' dalle ore 8.30 alle ore 12.30 e dalle 14.30 alle 19.00. SABATO dalle ore 8.30 alle ore 12.30
Affiliato
Industriale Bs Ovest Srl
Largo Romagnoli, 13 25045 Castegnato (BS)

2025 Tecnocasa Franchising S.p.A. - P. IVA 08365160152 - Via Monte Bianco 60/A 20089 Rozzano (MI). Ogni agenzia ha un proprio titolare ed è autonoma. Privacy policy | Policy utilizzo | Cookie policy