Capannone in affitto

Castrezzato, Via Caduti del Lavoro
€ 1.700 / mese
2 locali 2 locali
410 Mq 410 Mq
2 bagni 2 bagni

Capannone in affitto

Castrezzato, Via Caduti del Lavoro

Descrizione annuncio

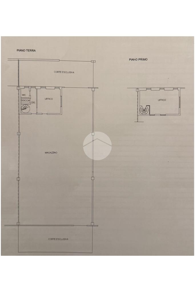
A Castrezzato, proponiamo in affitto capannone con una superficie totale di 410mq, così suddiviso:

circa 330 mq di zona capannone open space e completamente riscaldata tramite robour, e circa 80 mq di zona ufficio, disposta su due livelli dove è presente un doppio servizio (di cui uno a norma disabili) ed antibagno.

All'immobile si accede tramite un primo ingresso carraio, con altezza di 5,07m e larghezza di 4,42m posto sul fronte ed un accesso pedonale.

E' presente un secondo piccolo portone carraio, posto sul retro, con altezza di 3,95m e larghezza di 2,5m.

Gli impianti elettrico, luce ed idraulico sono funzionanti e sono presente inoltre calate 220/380v.

Il riscaldamento ed il raffrescamento, presenti nella zona uffici, sono autonomi ed avvengono tramite split.

Completano la soluzione due piccoli piazzali esclusivi, posti uno sul fronte ed uno sul retro dell'immobile.

Ubicato ad 1,5km dall'ingresso autostradale di Castrezzato.

Mostra tutto

Nelle vicinanze

Scuole Scuole
Scuole
970 m
Istituto Comprensivo M. L. King
2,8 Km
Scuola secondaria di primo grado M. L. King
2,8 Km
Supermercati Supermercati
Famila
150 m
Bar Bar
Bar
300 m
Roll Bar
2,6 Km
Ristoranti Ristoranti
Ristoranti
770 m
Villa Valenca
1,7 Km
Mostra tutto

Caratteristiche

Rif.:
61162128
Piano:
2 di 2 (Piano su più livelli)
Condizionamento:
Autonomo
Ascensore:
No
Riscaldamento:
Autonomo
Giardino:
Privato
Mostra tutto
Prezzo Prezzo
€ 1.700 / mese
Spese annue Spese annue
€ 0

Classe Energetica

G
G
G
G
G
G
G
G
G
EP globale non rinnovabile:
278.80 kW h/m² anno
EP globale rinnovabile:
278.80 kW h/m² anno
EP invernale del fabbricato:
EP estiva del fabbricato:
Anno di costruzione:
1990
Riscaldamento:
Autonomo
Tipo impianto:
Ad aria
Tipo alimentazione:
Aria

Ti interessa visionare l'immobile?

Fissa un appuntamento  Fissa un appuntamento

Richiedi informazioni

Clicca su Leggi per aprire l'informativa
* Questi campi sono obbligatori
Affiliato
Industriale Bs Ovest Srl
Largo Romagnoli, 13 25045 Castegnato (BS)

Il nostro staff


  • Simona Forti
    Affiliata

  • Alessio Bertoglio
    Affiliato

  • Rebecca Leoni
    Coordinatrice

  • Niccolò Olivetti
    Affiliato
Largo Romagnoli, 13 25045 Castegnato (BS)
Zona: Brescia Hinterland-Sud Ovest-Franciacorta
Mostra su mappa
Orari: Dal LUNEDI' al VENERDI' dalle ore 8.30 alle ore 12.30 e dalle 14.30 alle 19.00. SABATO dalle ore 8.30 alle ore 12.30
Affiliato
Industriale Bs Ovest Srl
Largo Romagnoli, 13 25045 Castegnato (BS)

2026 Tecnocasa Franchising S.p.A. - P. IVA 08365160152 - Via Monte Bianco 60/A 20089 Rozzano (MI). Ogni agenzia ha un proprio titolare ed è autonoma. Privacy policy | Policy utilizzo | Cookie policy