Capannone in vendita

Castel Mella, Via Torbole
€ 580.000
Prezzo aggiornato
10 locali 10 locali
1200 Mq 1200 Mq
2 bagni 2 bagni

Capannone in vendita

Castel Mella, Via Torbole

Descrizione annuncio

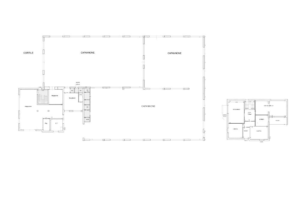
Nella zona artigianale situata tra Torbole Casaglia e Castel Mella, proponiamo in vendita lotto di circa 1.200mq cosi suddiviso:

circa 1.000mq di capannone, suddiviso in due campate completamente riscaldate tramite robour, con un servizio igienico;

circa 200 di palazzina dove al piano terra troviamo ufficio di 80 mq ed al primo piano un appartamento penta locale di circa 120mq, completamente arredato, con servizio igienico con doccia ed un balcone.

All'immobile si accede tramite 3 accessi carrai nella zona produttiva ed un accesso pedonale che conduce direttamente alla zona ufficio/abitazione.

L'altezza interna del capannone è di 4 m.

Gli impianti elettrico, luci ed idraulico sono funzionanti: sono presenti all'interno del capannone calate 220/380v e l'impianto elettrico ha una portata di 85 kW di potenza.

Il riscaldamento ed il raffrescamento presenti all'interno della palazzina sono autonomi ed avvengono tramite split e termosifoni.

Completa la soluzione area esclusiva di 1.000mq, libero sui 4 lati dell'immobile, comodo per la manovra dei mezzi.

Ubicato nella zona artigianale tra Torbole Casaglia e Castel Mella, ideale sia per attività produttive che di deposito.

Mostra tutto

Nelle vicinanze

Trasporto pubblico Trasporto pubblico
Via Umberto I 77
Via Umberto I 77
730 m
Via Marconi campo sportivo
Via Marconi campo sportivo
840 m
Ricariche auto elettriche Ricariche auto elettriche
Burger King Castel Mella
2,0 Km
Scuole Scuole
Scuola Secondaria di Primo Grado Leonardo Da Vinci
2,1 Km
Scuola Primaria
2,1 Km
Asilo Nido Comunale Scarabocchio
3,0 Km
Farmacia Farmacia
Farmacia Comunale
2,3 Km
Supermercati Supermercati
Famila
1,6 Km
MD
1,9 Km
Eurospin
2,2 Km
D+ Discount
2,3 Km
Lidl
2,5 Km
Negozi Negozi
Pisco Market
2,1 Km
Panificio Ontini
2,1 Km
Il Fornaio
3,0 Km
Bar Bar
Bar Alessandra
2,1 Km
Bar
2,1 Km
Bar Gelateria Rossini
2,1 Km
Lattepiù
2,2 Km
Bar Palazzetto CSCR
2,9 Km
Ristoranti Ristoranti
Taka Take Away
730 m
Osteria La Masna
1,3 Km
Blue Jeans
1,8 Km
Self Tavolamica
1,8 Km
Hostaria
2,1 Km
Mostra tutto

Caratteristiche

Rif.:
61153887
Piano:
1 di 1 (Piano terra con giardino)
Condizionamento:
Autonomo
Ascensore:
No
Riscaldamento:
Autonomo
Giardino:
Privato
Mostra tutto
Prezzo Prezzo
€ 580.000
Rata mutuo Rata mutuo
€ 2.708 / mese
Spese annue Spese annue
€ 0
Proponi il tuo prezzoProponi il tuo prezzo

Classe Energetica

G
G
G
G
G
G
G
G
G
EP globale non rinnovabile:
840.25 kW h/m² anno
EP globale rinnovabile:
840.25 kW h/m² anno
EP invernale del fabbricato:
EP estiva del fabbricato:
Anno di costruzione:
1990
Riscaldamento:
Autonomo
Tipo impianto:
Ad aria
Tipo alimentazione:
Aria

Prezzo ridotto di €1 (8%%)

Ti interessa visionare l'immobile?

Fissa un appuntamento  Fissa un appuntamento

Richiedi informazioni

Clicca su Leggi per aprire l'informativa
* Questi campi sono obbligatori

Calcola il tuo mutuo

Semplice e senza impegno
Anticipo

( % )
Mutuo

( % )

pochi semplici passi

inserisci i tuoi dati
Questionario completato
Grazie per aver richiesto un appuntamento senza impegno con un nostro Consulente del Credito e Assicurativo.

Hai inserito correttamente tutti i dati necessari e a breve riceverai una e-mail con un link da convalidare per inviare i tuoi dati.
Affiliato
Industriale Bs Ovest Srl
Largo Romagnoli, 13 25045 Castegnato (BS)

Il nostro staff


  • Simona Forti
    Affiliata

  • Alessio Bertoglio
    Affiliato

  • Niccolò Olivetti
    Affiliato
Largo Romagnoli, 13 25045 Castegnato (BS)
Zona: Brescia Hinterland-Sud Ovest-Franciacorta
Mostra su mappa
Orari: Dal LUNEDI' al VENERDI' dalle ore 8.30 alle ore 12.30 e dalle 14.30 alle 19.00. SABATO dalle ore 8.30 alle ore 12.30
Affiliato
Industriale Bs Ovest Srl
Largo Romagnoli, 13 25045 Castegnato (BS)

2026 Tecnocasa Franchising S.p.A. - P. IVA 08365160152 - Via Monte Bianco 60/A 20089 Rozzano (MI). Ogni agenzia ha un proprio titolare ed è autonoma. Privacy policy | Policy utilizzo | Cookie policy