Ufficio in affitto

Castegnato, Viale del Lavoro
€ 2.600 / mese
7 locali 7 locali
460 Mq 460 Mq
2 bagni 2 bagni

Ufficio in affitto

Castegnato, Viale del Lavoro

Questo immobile dispone di soluzioni frazionate

Descrizione annuncio

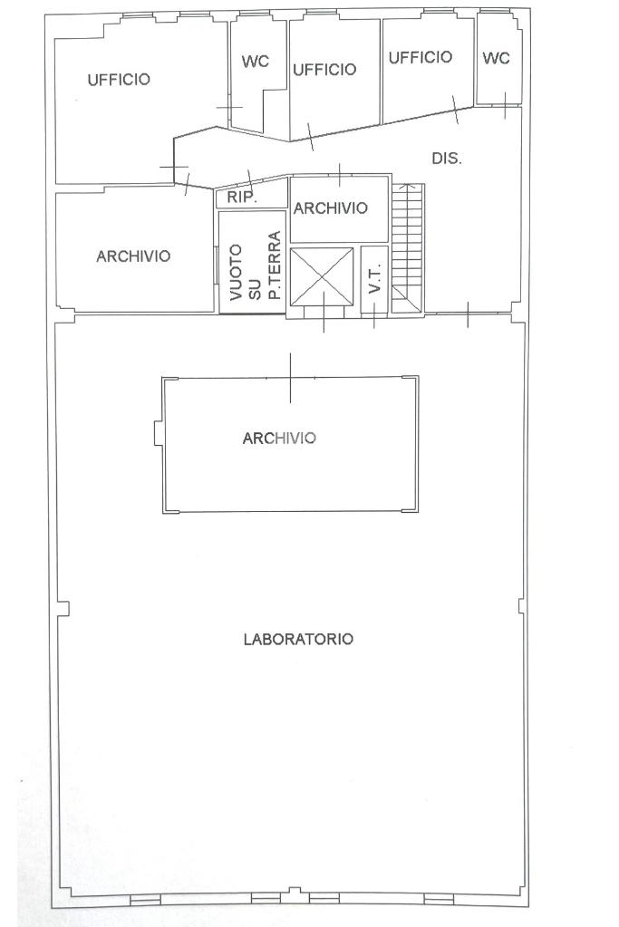
A Castegnato, proponiamo in affitto uffici con zona laboratorio/magazzino, completamente ristrutturati nel Febbraio 2023, posti al primo piano, accessibili tramite scala interna e montacarichi.

La soluzione è disposta in circa 120 mq di uffici, suddiviso in 4 stanze, reception e stanza archivio;

circa 320 mq, open space, comprensiva di un'ampia sala riunioni ed utilizzabile come ulteriori uffici (su richiesta) o ad uso magazzino/laboratorio.

La soluzione dispone di 2 servizi igienici con antibagno ed una doccia.

Il riscaldamento ed il raffrescamento sono autonomi ed avvengono tramite fan coil a soffitto, presenti in ogni stanza.

L'impianto elettrico, luci ed idraulico sono stati recentemente installati con impianto di ultima generazione (immobile completamente ristrutturato internamente ed esternamente nel 2023).

E' presente inoltre la fibra e l'impianto allarme con telecamere.

Gli uffici sono arredati in tutti i locali, con arredo su misura.

Ubicato nella Zona artigianale di Castegnato, al confine con Ospitaletto, l'immobile è ideale per attività che necessitano di una sede prestigiosa e di rappresentanza.

CANONE SOGGETTO AD IVA.

Mostra tutto

Nelle vicinanze

Trasporto pubblico Trasporto pubblico
stazione di Ospitaletto-Travagliato
stazione di Ospitaletto-Travagliato
2,1 Km
stazione di Castegnato
stazione di Castegnato
2,1 Km
Ricariche auto elettriche Ricariche auto elettriche
Castegnato Illa | Ressolar
1,3 Km
Municipio di Ospitaletto | EnelX
1,6 Km
Tigota' Castegnato | BeCharge
1,7 Km
Lidl Castegnato
1,7 Km
Ospitaletto Sant'Antonio | EnelX
1,9 Km
Scuole Scuole
Scuole
1,6 Km
Scuola elementare Edmondo De Amicis
1,7 Km
Farmacia Farmacia
Farmacia Comunale
1,6 Km
Farmacia dr. Pinetti
2,0 Km
Supermercati Supermercati
Italmark
450 m
Supermercati
1,1 Km
Negozi Negozi
Dolce e Salato
1,1 Km
5 Zecchini
2,1 Km
San Giorgio
2,7 Km
Nike
2,8 Km
Alcott
2,8 Km
Bar Bar
Bar
410 m
Associazione Pensionati Anziani
1,8 Km
Autogrill
3,0 Km
Ristoranti Ristoranti
Ristoranti
380 m
Trattoria Casa dell'Aviere
850 m
Pizzeria Cattafame
1,4 Km
Bar Ristorante Barakka
1,5 Km
Il Colmetto
2,0 Km
Mostra tutto

Caratteristiche

Rif.:
61146181
Piano:
1 di 1 con ascensore (Piano alto)
Posti auto:
2
Condizionamento:
Autonomo
Ascensore:
Riscaldamento:
Autonomo
Mostra tutto
Prezzo Prezzo
€ 2.600 / mese
Spese annue Spese annue
€ 2.400

Classe Energetica

G
G
G
G
G
G
G
G
G
EP globale non rinnovabile:
252.55 kW h/m² anno
EP globale rinnovabile:
252.55 kW h/m² anno
EP invernale del fabbricato:
EP estiva del fabbricato:
Anno di costruzione:
2000
Riscaldamento:
Autonomo
Tipo impianto:
Ad aria
Tipo alimentazione:
Aria

Ti interessa visionare l'immobile?

Fissa un appuntamento  Fissa un appuntamento

Richiedi informazioni

Clicca su Leggi per aprire l'informativa
* Questi campi sono obbligatori
Affiliato
Industriale Bs Ovest Srl
Largo Romagnoli, 13 25045 Castegnato (BS)

Il nostro staff


  • Simona Forti
    Affiliata

  • Alessio Bertoglio
    Affiliato

  • Rebecca Leoni
    Coordinatrice

  • Niccolò Olivetti
    Affiliato
Largo Romagnoli, 13 25045 Castegnato (BS)
Zona: Brescia Hinterland-Sud Ovest-Franciacorta
Mostra su mappa
Orari: Dal LUNEDI' al VENERDI' dalle ore 8.30 alle ore 12.30 e dalle 14.30 alle 19.00. SABATO dalle ore 8.30 alle ore 12.30
Affiliato
Industriale Bs Ovest Srl
Largo Romagnoli, 13 25045 Castegnato (BS)

2026 Tecnocasa Franchising S.p.A. - P. IVA 08365160152 - Via Monte Bianco 60/A 20089 Rozzano (MI). Ogni agenzia ha un proprio titolare ed è autonoma. Privacy policy | Policy utilizzo | Cookie policy