Capannone in vendita

Brescia, Via A. Lamarmora - Lamarmora
€ 250.000
3 locali 3 locali
290 Mq 290 Mq
3 bagni 3 bagni

Capannone in vendita

Brescia, Via A. Lamarmora - Lamarmora

Questo immobile appartiene ad un'unità principale con metratura più ampia

Descrizione annuncio

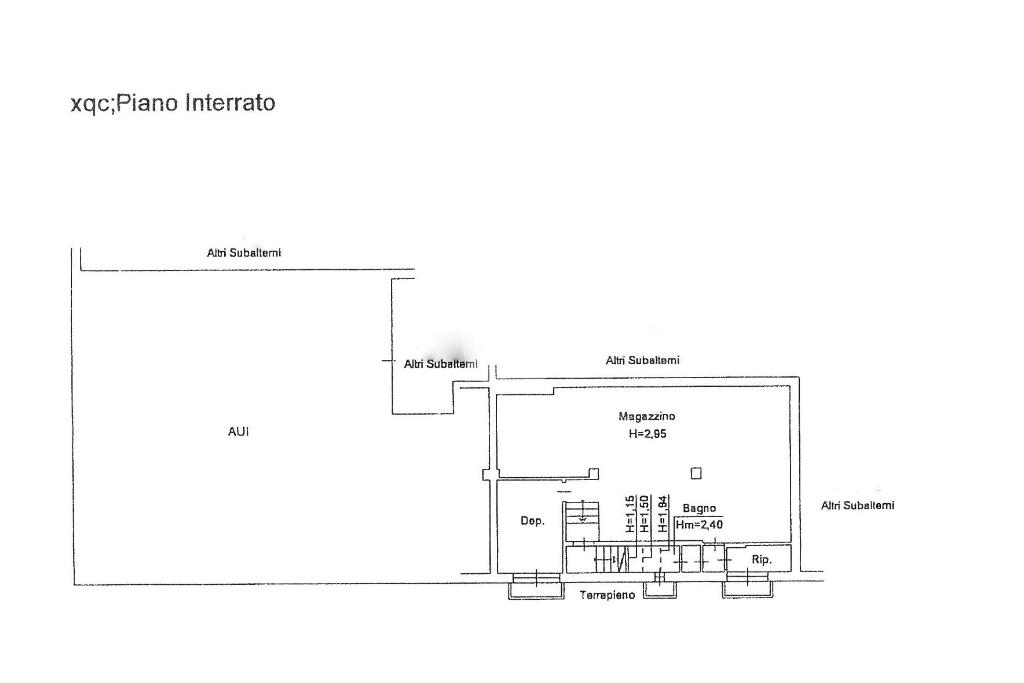
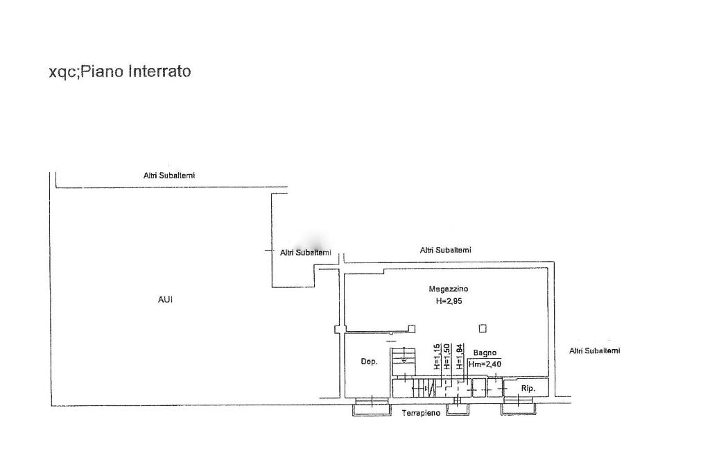
A Brescia, in Via Lamarmora, di fronte all'uscita della metropolitana, proponiamo in vendita locali di circa 290 mq posti al piano interrato.

La metratura è divisa in due immobili distinti, ma confinanti e con i due accessi vicini: il primo è disposto con una grande zona open space immediatamente all'ingresso dell'immobile ed a lato una grande stanza spogliatoio con 3 docce ed un servizio igienico, oltre ad un secondo servizio con antibagno di ampia metratura e doccia singola; il secondo invece è disposto su un unico grande ambiente open space con un servizio igienico ed antibagno.

All'immobile si accede tramite due scale esterne, sotto i portici del condominio.

Gli impianti elettrico luci ed idraulico sono funzionanti.

Il riscaldamento ed il raffrescamento sono centralizzati ed avvengono tramite termoconvettori.

Vi sono circa €1.100 mensili di spese condominiali, comprensive di tutti i consumi di riscaldamento e raffrescamento, oltre agli oneri generali.

Completano la soluzione due posti auto riservati all'interno dell'area condominiale, delimitata da sbarra per gli esercenti.

Ubicato a ridosso della fermata metropolitana di Lamarmora, quindi facilmente raggiungibile grazie alla vicinanza dei mezzi di trasporto e delle principali vie di comunicazione.

Grande parcheggio della metropolitana a pochi passi.

Mostra tutto

Nelle vicinanze

Trasporto pubblico Trasporto pubblico
Lamarmora
Lamarmora
110 m
Bresciadue
Bresciadue
570 m
stazione di Brescia
stazione di Brescia
1,2 Km
Via Lamarmora n 138/a
Via Lamarmora n 138/a
80 m
Via Lamarmora n 91/93
Via Lamarmora n 91/93
250 m
Ricariche auto elettriche Ricariche auto elettriche
A2A BS Green Energy Point "Il Metano"
340 m
A2A Parcheggio Kennedy
620 m
A2A San Zeno
660 m
A2A BS Via Sostegno
1,1 Km
COOP cc Nuovo Flaminia
1,1 Km
Scuole Scuole
Istituto di Istruzione Superiore Statale Camillo Golgi
540 m
Scuola Secondaria di Primo Grado Bettinzoli
870 m
Istituto Comprensivo Rinaldini Sud 3
950 m
Scuole
1,5 Km
Conservatorio di musica Luca Marenzio
1,9 Km
Farmacia Farmacia
Farmacia Bravi
640 m
Farmacia Austoni
1,2 Km
Parafarmacia BewellPharma
1,4 Km
Farmacia Don Bosco
1,4 Km
Farmacia Croce Bianca
1,6 Km
Ospedali Ospedali
Fondazione Poliambulanza Istituto Ospedaliero
2,0 Km
Clinica San Camillo
2,7 Km
Supermercati Supermercati
Simply Market
760 m
Lidl
1,3 Km
to.market
1,3 Km
Esselunga
1,4 Km
Italmark
1,6 Km
Negozi Negozi
Ristohouse
980 m
A Tutto Risparmio
1,0 Km
Lekkerland
1,1 Km
Il forno di via Cremona
1,1 Km
Meraglino
1,4 Km
Bar Bar
Green Cafè
490 m
Bar
660 m
Bar Re Artù
660 m
Bar Pi Greco
760 m
Circus Beat Club
1,1 Km
Ristoranti Ristoranti
Il Quadrifoglio
130 m
il Lorenzaccio
310 m
Fresco
640 m
Manuno Bis
780 m
Ristorante Pizzeria Laguna Blu
900 m
Mostra tutto

Caratteristiche

Rif.:
61195994
Piano:
1 di 1 (Piano seminterrato)
Condizionamento:
Centralizzato
Ascensore:
No
Riscaldamento:
Centralizzato
Libero:
Mostra tutto
Prezzo Prezzo
€ 250.000
Rata mutuo Rata mutuo
€ 1.179 / mese
Spese annue Spese annue
€ 13.200
Proponi il tuo prezzoProponi il tuo prezzo

Classe Energetica

G
G
G
G
G
G
G
G
G
EP globale non rinnovabile:
88.00 kW h/m² anno
EP globale rinnovabile:
88.00 kW h/m² anno
EP invernale del fabbricato:
EP estiva del fabbricato:
Anno di costruzione:
1990
Riscaldamento:
Centralizzato
Tipo impianto:
Ad aria
Tipo alimentazione:
Aria

Ti interessa visionare l'immobile?

Fissa un appuntamento  Fissa un appuntamento

Richiedi informazioni

Clicca su Leggi per aprire l'informativa
* Questi campi sono obbligatori

Calcola il tuo mutuo

Semplice e senza impegno
Anticipo

( % )
Mutuo

( % )

pochi semplici passi

inserisci i tuoi dati
Questionario completato
Grazie per aver richiesto un appuntamento senza impegno con un nostro Consulente del Credito e Assicurativo.

Hai inserito correttamente tutti i dati necessari e a breve riceverai una e-mail con un link da convalidare per inviare i tuoi dati.
Affiliato
Industriale Bs Ovest Srl
Largo Romagnoli, 13 25045 Castegnato (BS)

Il nostro staff


  • Simona Forti
    Affiliata

  • Alessio Bertoglio
    Affiliato

  • Niccolò Olivetti
    Affiliato
Largo Romagnoli, 13 25045 Castegnato (BS)
Zona: Brescia Hinterland-Sud Ovest-Franciacorta
Mostra su mappa
Orari: Dal LUNEDI' al VENERDI' dalle ore 8.30 alle ore 12.30 e dalle 14.30 alle 19.00. SABATO dalle ore 8.30 alle ore 12.30
Affiliato
Industriale Bs Ovest Srl
Largo Romagnoli, 13 25045 Castegnato (BS)

2026 Tecnocasa Franchising S.p.A. - P. IVA 08365160152 - Via Monte Bianco 60/A 20089 Rozzano (MI). Ogni agenzia ha un proprio titolare ed è autonoma. Privacy policy | Policy utilizzo | Cookie policy