Capannone in vendita

Berlingo, Via I Maggio
2 locali 2 locali
340 Mq 340 Mq
2 bagni 2 bagni

Capannone in vendita

Berlingo, Via I Maggio

Descrizione annuncio

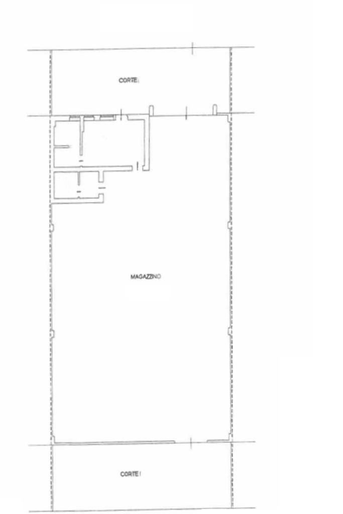
A Berlingo proponiamo capannone con una superficie totale di circa 340 mq, con altezza di 6 m sottotrave, comprensivo di una stanza utilizzabile come piccolo ufficio.

All'interno il capannone dispone di un doppio servizio igienico entrambi dotati di antibagno ed uno con doccia.

Il portone carraio d'accesso posto sul piazzalino privato sul fronte dell'immobile ha una larghezza di 4,50 m ed un'altezza di 4,30 m, mentre il secondo carraio posto sul fondo della campata, con il quale si accede al secondo piazzalino sul retro, misura 2,50 m di larghezza e 3 m di altezza.

Gli impianti elettrico, idraulico e luci sono funzionanti;

sono presenti altresì le calate 220/380.

Vi sono numerosi parcheggi nelle vicinanze.

La soluzione si trova nelle vicinanze del paese e nelle vicinanze di importanti vie di comunicazione quali Strade Statali e Tangenziali, nelle immediate vicinanze del comune di Brescia e al raccordo della Corda Molle e della .

Mostra tutto

Nelle vicinanze

Trasporto pubblico Trasporto pubblico
Trasporto pubblico
380 m
Bar Bar
Roll Bar
1,9 Km
Bar
2,1 Km
Ristoranti Ristoranti
Azienda Agricola Al Berlinghetto
1,3 Km
Ristoranti
2,1 Km
Mostra tutto

Caratteristiche

Rif.:
61139373
Piano:
1 di 1 (Piano terra con giardino)
Condizionamento:
Autonomo
Ascensore:
No
Riscaldamento:
Autonomo
Giardino:
Privato
Mostra tutto
Prezzo Prezzo
€ 280.000
Rata mutuo Rata mutuo
€ 1.319 / mese
Spese annue Spese annue
€ 0
Anche in affitto a
Proponi il tuo prezzoProponi il tuo prezzo

Classe Energetica

G
G
G
G
G
G
G
G
G
EP globale non rinnovabile:
354.00 kW h/m² anno
EP globale rinnovabile:
354.00 kW h/m² anno
EP invernale del fabbricato:
EP estiva del fabbricato:
Anno di costruzione:
1990
Riscaldamento:
Autonomo
Tipo impianto:
Ad aria
Tipo alimentazione:
Aria

Ti interessa visionare l'immobile?

Fissa un appuntamento  Fissa un appuntamento

Richiedi informazioni

Clicca su Leggi per aprire l'informativa
* Questi campi sono obbligatori

Calcola il tuo mutuo

Semplice e senza impegno
Anticipo

( % )
Mutuo

( % )

pochi semplici passi

inserisci i tuoi dati
Questionario completato
Grazie per aver richiesto un appuntamento senza impegno con un nostro Consulente del Credito e Assicurativo.

Hai inserito correttamente tutti i dati necessari e a breve riceverai una e-mail con un link da convalidare per inviare i tuoi dati.
Affiliato
Industriale Bs Ovest Srl
Largo Romagnoli, 13 25045 Castegnato (BS)

Il nostro staff


  • Simona Forti
    Affiliata

  • Alessio Bertoglio
    Affiliato

  • Rebecca Leoni
    Coordinatrice

  • Niccolò Olivetti
    Affiliato
Largo Romagnoli, 13 25045 Castegnato (BS)
Zona: Brescia Hinterland-Sud Ovest-Franciacorta
Mostra su mappa
Orari: Dal LUNEDI' al VENERDI' dalle ore 8.30 alle ore 12.30 e dalle 14.30 alle 19.00. SABATO dalle ore 8.30 alle ore 12.30
Affiliato
Industriale Bs Ovest Srl
Largo Romagnoli, 13 25045 Castegnato (BS)

2026 Tecnocasa Franchising S.p.A. - P. IVA 08365160152 - Via Monte Bianco 60/A 20089 Rozzano (MI). Ogni agenzia ha un proprio titolare ed è autonoma. Privacy policy | Policy utilizzo | Cookie policy